VBON 005 – BONANOVA
This magnificent detached house is located in the exclusive residential…
1,750,000€
Carrer de Pablo Iglesias, Son Ferragut, Palma, Islas Baleares, 07004, España
For Sale
465,000€
















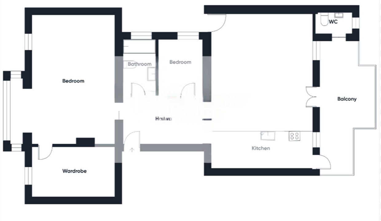
Two-bedroom Apartment with Big Balcony For Sale in Lively Arxiduc Neighbourhood
This historic apartment is located in the lively Arxiduc neighborhood, right in the center of Palma.
It features a spacious master bedroom with a walk-in closet, sitting area, and floor-to-ceiling windows, as well as an additional bedroom that can be used as a kids’ room, guest room, or office.
On the other side of the apartment, you’ll find a generous living area with an open kitchen and bar, plus doors that open onto a balcony of approximately 15 square meters. The apartment includes a full bathroom and a separate guest toilet.
Large windows on both sides of the apartment provide plenty of natural light and cross ventilation.
Located just minutes from Palma’s historic centre, Arxiduc is a well-connected neighbourhood that combines charm and convenience. With the Intermodal transport hub and Parc de Ses Estacions
nearby, residents enjoy excellent mobility and green spaces at their doorstep.
The area blends classic architecture with modern living, offering wide avenues, lively squares, schools, shops, and local cafés. A strong community atmosphere makes it ideal for families, while new businesses and services attract young professionals.
C.E.E. – D
This magnificent detached house is located in the exclusive residential…
1,750,000€
Extraordinary townhouse with several terraces, patio and garden in an…
1,800,000€
VVCGB 001 – CALA GAMBA Palma
EnglishOwning a home is a keystone of wealth… both financial affluence and emotional security.
Suze OrmanEste sitio web utiliza Cookies propias para recopilar información con la finalidad de mejorar nuestros servicios. Si continua navegando, supone la aceptación de la instalación de las mismas. El usuario tiene la posibilidad de configurar su navegador pudiendo, si así lo desea, impedir que sean instaladas en su disco duro, aunque deberá tener en cuenta que dicha acción podrá ocasionar dificultades de navegación de la página web. Cómo configurar
ACEPTAR